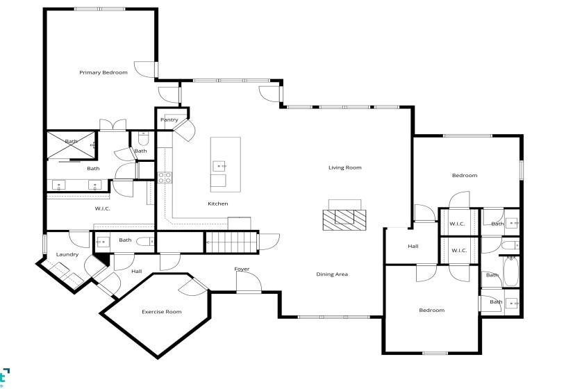
Experience the perfect blend of luxury estate living with the peace & serenity of 11.68 wooded acres! RARE one-story custom-built (2015) masterpiece with high end custom finishes, soaring high ceilings, and durable elegant stained concrete floors. All brick exterior (no siding), extra large 3 car garage with tons of attic storage above. Outside is your own private sanctuary. Whether you are hosting on the covered patio or cozying up by the outdoor fireplace, the backdrop of stunning nature ensures total privacy and peace. Open Kitchen Concept with premium granite countertops, and stainless steel appliances, overlooks the beautiful living room fireplace. Retreat to the primary suite or utilize the dedicated private office for a perfect work-from-home setup. Energy efficiency is a priority with dual tankless water heaters, tech shield radiant barrier in attic, and a New Roof (2025). Call listing agent today for more information.

